您的位置: 西安视窗 > 家居 > 正文

46㎡小户型设计成两室一厅,别样学区房大改造,明亮通透很清爽

2020-09-08 13:52:34来源:阅读:-

老房子也有春天,将46㎡ 小户型重新设计,带来与外观完全不一样的设计,而且是学区房的改造,完美融合两室一厅的设计方案,给你不一样的感受

46㎡小户型设计成两室一厅,别样学区房大改造,明亮通透很清爽

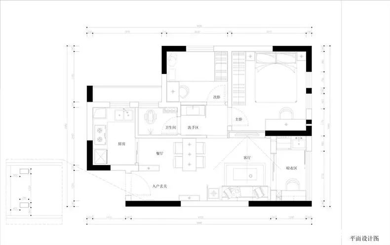
面积:46㎡

户型:2室1厅

『 屋主诉求 』

1.房子老,户型不合理,重新设计改造适宜两居室

2.空间太暗,光线差,收纳不够

『 户型图 』

46㎡小户型设计成两室一厅,别样学区房大改造,明亮通透很清爽


推荐阅读:佛山都市网

滚动推荐
52:3446㎡小户型设计成两室一厅,别样学
老房子也有春天,将46㎡ 小户型重新设计,带来与外观完全不一样的设计,[详细]
52:1511套美式别墅效果图合辑,这些房子
美式建筑的风格近年来非常受欢迎,它将沉稳内敛,自由不羁的双重气质完美融[详细]
51:30105平美式轻奢 能让你下班回家立
装修风格:美式轻奢风格实际面积:105㎡ 3房2厅2卫设计师:花容想项[详细]
51:02五菱银标MPV-凯捷亮相,动力超比
9月7日上汽通用五菱全球银标首款车型-凯捷正式亮相,新车定位为紧凑型M[详细]
50:45新款Lexus LS正式亮相,搭5
雷克萨斯第五代Lexus LS 于2017 年推出,官方今日正式发表中[详细]
50:25丰田亚洲龙8月份销量成功破万,看看
如今国内汽车市场的竞争越来越激烈,比如在合资中型轿车市场,就有很多综合[详细]
50:029万多元的新一代飞度潮跑版,这配置
在经过较长一段时间的造势之后,本田新一代飞度终于今年8月份在国内正式上[详细]